<

3 Bedroom house for sale
Rock Road, Sittingbourne, Kent, ME10

Offers in the Region of £300,000

SMARTLY Presented END Terrace House | Three Separate BEDROOMS | Good Sized GARDEN | PARKING Space to Rear | Two RECEPTION Rooms | MODERN Fitted Kitchen | Dining Room | Ground Floor Bathroom | Walkable to Town & Station |

  • End Terrace
  • Garden
  • Off Street Parking
  • House

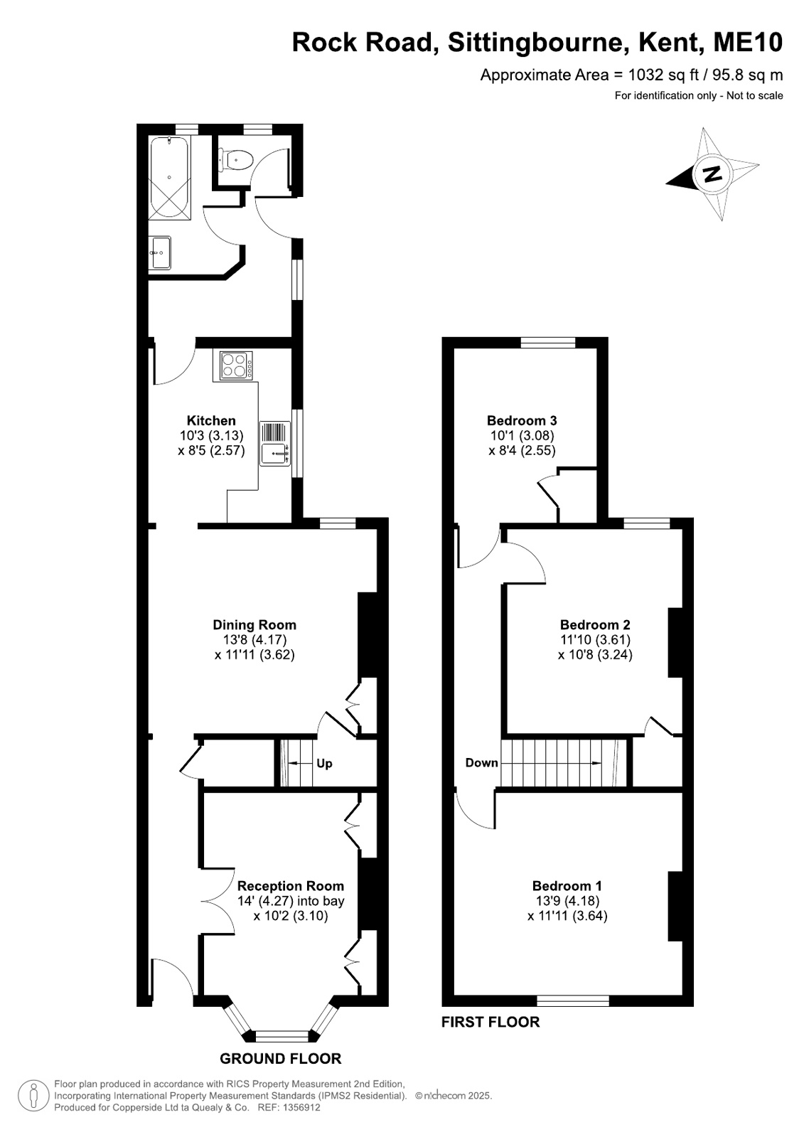
This beautifully presented end terrace house is ideally situated in a convenient location and offers spacious, well-planned accommodation throughout. The property opens with a welcoming entrance hall leading to a generous reception room with a bay window to the front, creating a bright and inviting living space. To the rear, there is a separate dining room and a modern fitted kitchen, along with a family bathroom and a separate WC. Upstairs, the property boasts a large main bedroom to the front, complemented by two further well-proportioned bedrooms, all accessed separately. Externally, the home benefits from a good-sized rear garden featuring both a patio area and lawn, providing an excellent space for relaxation and outdoor entertaining. There is also the benefit of a parking space behind the garden. The property is ideally located for access to a choice of popular schools and the town centre with high street shopping and mainline railway station offering High Speed services to London is no more than 0.25 miles away.

 
Interested in finding out how much stamp duty you’d pay?
Calculate Stamp Duty
Use our mortgage calculator to calculate your repayments
Recalculate Payments
Our experts have handpicked some great mortgage deals.
View Mortgage Deals

About Sittingbourne

Sittingbourne is ready to step up its image by embracing a £46 million regeneration scheme, designed to create a ‘destination town’. The Spirit of Sittingbourne masterplan contains new apartments, an eight-screen cinema, new restaurants and an improved public realm –a vision already turning heads.

View Area Guide

Similar Properties

View More Properties
Top