<

2 Bedroom house for sale
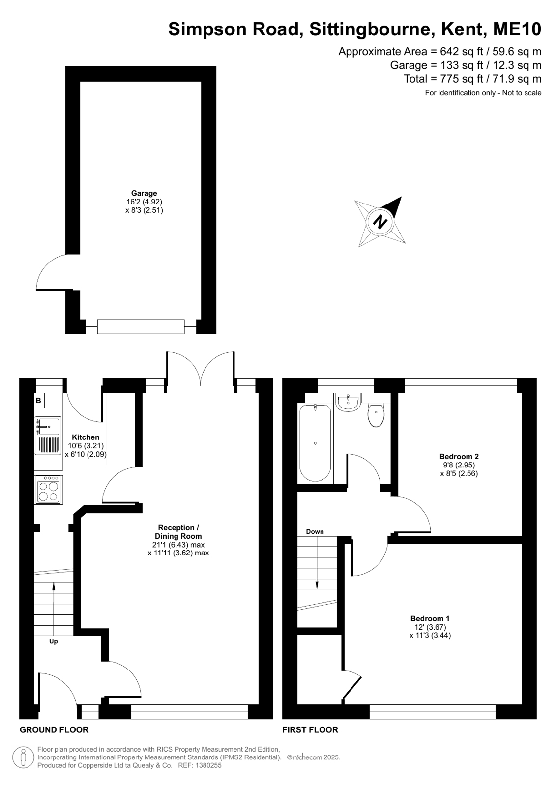
Simpson Road, Sittingbourne, Kent, ME10

Offers Over £260,000

NO Onward Chain! | 2 Double Bedrooms | Terraced House | Fitted Kitchen | Reception/Dining Room | IDEAL First Time Buy | Garage to Rear | Enclosed Rear Garden | Popular Location

  • Terraced
  • Off Street Parking
  • House

This mid-terrace home is offered for sale with no onward chain and is an ideal opportunity for a first-time buyer. The property features an entrance hall leading into an open-plan reception and dining room, complete with patio doors that open directly onto the rear garden. A fitted kitchen sits just off the main living area. Upstairs, there are two double bedrooms and a family bathroom. The rear garden includes both patio and lawn areas, providing a pleasant space to relax or entertain, and there is the added benefit of a garage to the rear. Simpson Road is situated on the Grove Park development and lies approximately two miles from Sittingbourne town centre offering access to it's High Street shopping and Leisure facilities and it's mainline railway station, as well as being conveniently located for schools for children of all ages, a local parade of shops and easy access to all of the major road links.

Property Market Intelligence

Providing data-driven insight into the local residential property market.

Areas covered by

Click here to view all the data and analysis on how the local property market is performing today.

Data refers to prices and sales numbers achieved in the last 12 months (all residential property types).
House price change compares average prices achieved in the last 12 months with the previous 12 month period.
Sources: Dataloft, Land Registry, Dataloft Rental Market Analytics

 
Book a Viewing
Stamp Duty for this property would be {price}*

*Based on this being your first property purchase, please recalculate if this isn’t the case.

Recalculate Stamp Duty
Mortgage Repayments for this property would be {price}/m*

*Based on having a {deposit}% deposit, an annual interest rate of {interest}% and repayment over {years} years.

Recalculate Payments
Our experts have handpicked some great mortgage deals.

Based on the current lending policies of banks and evaluation of income and related documents.

View Mortgage Deals

About Sittingbourne

Sittingbourne is ready to step up its image by embracing a £46 million regeneration scheme, designed to create a ‘destination town’. The Spirit of Sittingbourne masterplan contains new apartments, an eight-screen cinema, new restaurants and an improved public realm –a vision already turning heads.

View Area Guide

Similar Properties

View More Properties
Top