<

3 Bedroom house for sale
Breach Lane, Lower Halstow, Sittingbourne, Kent, ME9

Offers Over £300,000

THREE BEDROOM !! Two reception rooms / Country Views / Private Parking For Three Cars / Desirable Location / Two Double Bedrooms / Open Plan Kitchen Diner / Local Village Amenities / Close To Train stations

  • Terraced
  • Garden
  • Residents Parking
  • Off Street Parking
  • House

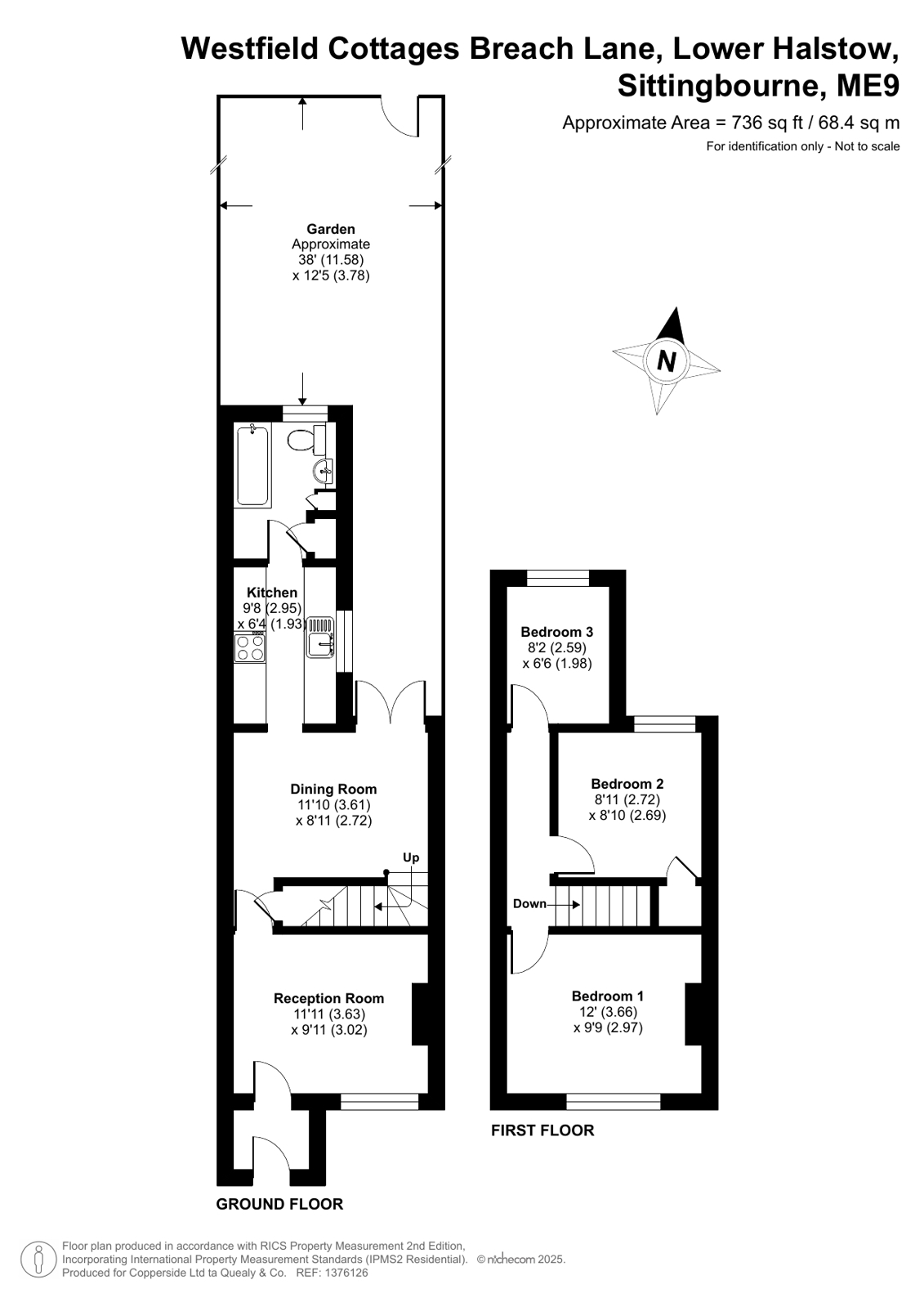
hree Bedroom Cottage in Lower Halstow – Driveway and Additional Parking

Located in the popular village of Lower Halstow, this well-presented three-bedroom mid-terrace cottage offers comfortable living in a quiet countryside setting, bordering Upchurch.

The property features two reception rooms, an open-plan kitchen and dining area, and a private enclosed rear garden with rear access. Upstairs, there are two double bedrooms and a single bedroom, providing good space for families or first-time buyers.

To the front, there is a small driveway, and the property also benefits from two additional parking spaces in a residents’ car park managed by the local parish.

The village offers a local shop, pub, village hall, and primary school, with Newington station approximately a 7-minute drive and Rainham station around 10 minutes away, both providing regular services to London. There are also several good secondary schools in the area.

This is a well-located property offering practical space, village living, and easy access to local transport links.

Property Market Intelligence

Providing data-driven insight into the local residential property market.

Areas covered by

Click here to view all the data and analysis on how the local property market is performing today.

Data refers to prices and sales numbers achieved in the last 12 months (all residential property types).
House price change compares average prices achieved in the last 12 months with the previous 12 month period.
Sources: Dataloft, Land Registry, Dataloft Rental Market Analytics

 
Book a Viewing
Stamp Duty for this property would be {price}*

*Based on this being your first property purchase, please recalculate if this isn’t the case.

Recalculate Stamp Duty
Mortgage Repayments for this property would be {price}/m*

*Based on having a {deposit}% deposit, an annual interest rate of {interest}% and repayment over {years} years.

Recalculate Payments
Our experts have handpicked some great mortgage deals.

Based on the current lending policies of banks and evaluation of income and related documents.

View Mortgage Deals

About Sittingbourne

Sittingbourne is ready to step up its image by embracing a £46 million regeneration scheme, designed to create a ‘destination town’. The Spirit of Sittingbourne masterplan contains new apartments, an eight-screen cinema, new restaurants and an improved public realm –a vision already turning heads.

View Area Guide

Similar Properties

View More Properties
Top