<

3 Bedroom house for sale
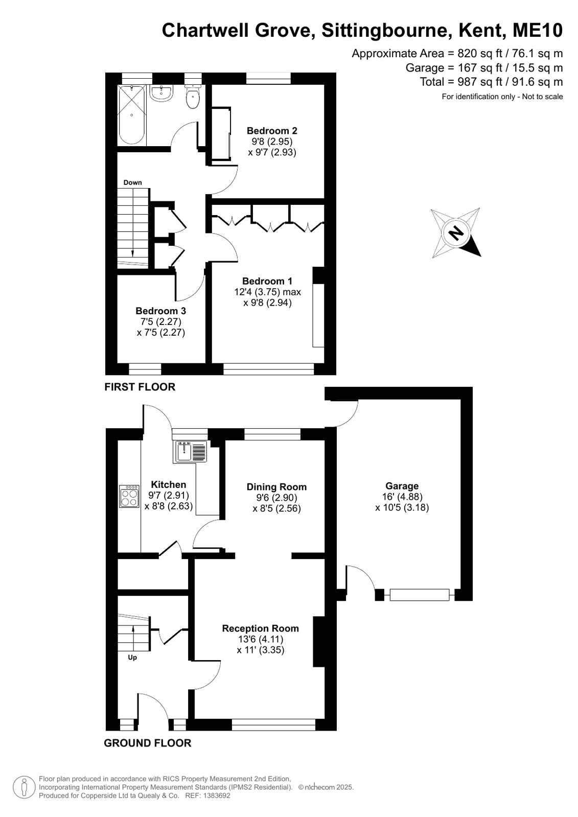
Chartwell Grove, Sittingbourne, Kent, ME10

Asking price £350,000

No Onward Chain! | Three Bedrooms | Semi Detached | Driveway Parking | Approx 987 Sq.Ft | Garage | Modern | South Sittingbourne | Walking Distance to Primary & Secondary Schools |

  • Semi Detached
  • Garden
  • Garage Parking
  • House

A modern and well-presented three-bedroom home situated in Chartwell Grove, Sittingbourne with the benefit of having no onward chain. The property offers a welcoming layout with a bright reception room that flows into the dining area, creating an inviting space for everyday living and entertaining. The kitchen is well arranged with contemporary fittings and links neatly to the main living spaces. Upstairs, the home features three bedrooms, including a comfortable main bedroom with fitted wardrobes, a second double room, and a third bedroom that works well as a guest room, nursery or home office. A stylish family bathroom completes the first floor. Outside, the property benefits from driveway parking, an attached garage and a private rear garden, providing an ideal space for relaxing, outdoor dining or family activities. Set in a quiet residential location, this home combines modern living with convenient access to local amenities, schools and transport links

Property Market Intelligence

Providing data-driven insight into the local residential property market.

Areas covered by

Click here to view all the data and analysis on how the local property market is performing today.

Data refers to prices and sales numbers achieved in the last 12 months (all residential property types).
House price change compares average prices achieved in the last 12 months with the previous 12 month period.
Sources: Dataloft, Land Registry, Dataloft Rental Market Analytics

 
Book a Viewing
Stamp Duty for this property would be {price}*

*Based on this being your first property purchase, please recalculate if this isn’t the case.

Recalculate Stamp Duty
Mortgage Repayments for this property would be {price}/m*

*Based on having a {deposit}% deposit, an annual interest rate of {interest}% and repayment over {years} years.

Recalculate Payments
Our experts have handpicked some great mortgage deals.

Based on the current lending policies of banks and evaluation of income and related documents.

View Mortgage Deals

About Sittingbourne

Sittingbourne is ready to step up its image by embracing a £46 million regeneration scheme, designed to create a ‘destination town’. The Spirit of Sittingbourne masterplan contains new apartments, an eight-screen cinema, new restaurants and an improved public realm –a vision already turning heads.

View Area Guide

Similar Properties

View More Properties
Top