<

3 Bedroom house for sale
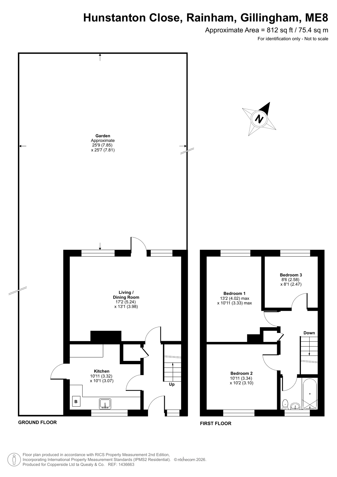
Hunstanton Close, Rainham, Gillingham, Kent, ME8

Offers Over £230,000

NO CHAIN !! Three Bedroom / INVESTOR OPPORTUNITY / New Boiler / Garage / Desirable Location / Cul de Sac / First Time Buyer / Close To Schools And shops /

  • Terraced
  • Garden
  • Off Street Parking
  • Garage Parking
  • House

Situated in a quiet cul-de-sac in Rainham, Kent, this three bedroom end of terrace property offers excellent potential for investors and first-time buyers alike. The home benefits from a garage en bloc, on-street parking to the front, and a generously sized rear gardenideal for families.

Internally, the property is in need of refurbishment, providing a fantastic opportunity to modernise and add value. Additional features include a recently installed new boiler and the advantage of being sold with no onward chain, allowing for a smooth and speedy transaction.

Perfectly located just a few minutes from the M2 motorway, the property offers great transport links for commuters while still enjoying a peaceful residential setting.

A great opportunity not to be missed viewing highly recommended.

 
Book a Viewing
 

Book a Property Valuation in Rainham

Stamp Duty for this property would be {price}*

*Based on this being your first property purchase, please recalculate if this isn’t the case.

Recalculate Stamp Duty
Mortgage Repayments for this property would be {price}/m*

*Based on having a {deposit}% deposit, an annual interest rate of {interest}% and repayment over {years} years.

Recalculate Payments
Our experts have handpicked some great mortgage deals.

Based on the current lending policies of banks and evaluation of income and related documents.

View Mortgage Deals

About Sittingbourne

Sittingbourne is ready to step up its image by embracing a £46 million regeneration scheme, designed to create a ‘destination town’. The Spirit of Sittingbourne masterplan contains new apartments, an eight-screen cinema, new restaurants and an improved public realm –a vision already turning heads.

View Area Guide
Top