<

3 Bedroom house for sale
Rock Road, Sittingbourne, Kent, ME10

Offers Over £275,000

3-Bedrooms, 2 Reception Rooms & OFF-STREET Parking! VICTORIAN STYLE Home WALKING DISTANCE to Town Centre & STATION

  • Terraced
  • Garden
  • House

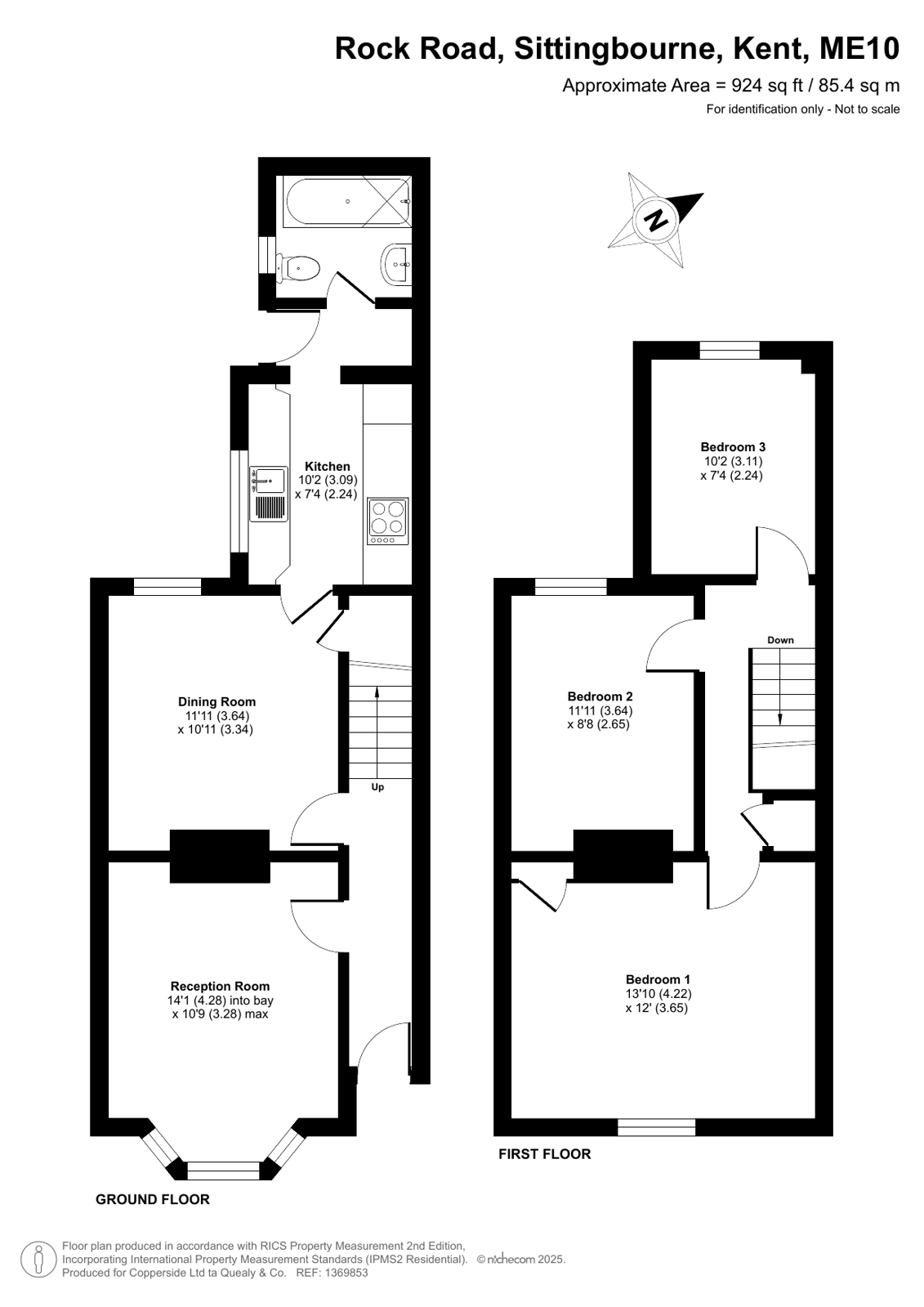
This charming Victorian-style three-bedroom home on Rock Road, Sittingbourne, offers the perfect blend of period character and modern convenience. Ideally situated within walking distance of the town centre and train station, this property features two spacious reception rooms — a bright bay-fronted lounge and a generous dining area — ideal for family living or entertaining. The kitchen is well-presented with classic cabinetry, wood-style worktops, and access to a smartly tiled bathroom.

Upstairs, you’ll find three well-proportioned bedrooms, each offering a comfortable retreat.

Outside, the home boasts a delightful rear garden with patio and raised beds, plus the rare advantage of off-street parking accessed via the rear. With its attractive façade, well-maintained interiors, and convenient location close to local amenities, schools, and transport links, this delightful property makes an excellent first home or investment opportunity in the heart of Sittingbourne.

Property Market Intelligence

Providing data-driven insight into the local residential property market.

Areas covered by

Click here to view all the data and analysis on how the local property market is performing today.

Data refers to prices and sales numbers achieved in the last 12 months (all residential property types).
House price change compares average prices achieved in the last 12 months with the previous 12 month period.
Sources: Dataloft, Land Registry, Dataloft Rental Market Analytics

 
Book a Viewing
Stamp Duty for this property would be {price}*

*Based on this being your first property purchase, please recalculate if this isn’t the case.

Recalculate Stamp Duty
Mortgage Repayments for this property would be {price}/m*

*Based on having a {deposit}% deposit, an annual interest rate of {interest}% and repayment over {years} years.

Recalculate Payments
Our experts have handpicked some great mortgage deals.

Based on the current lending policies of banks and evaluation of income and related documents.

View Mortgage Deals

About Sittingbourne

Sittingbourne is ready to step up its image by embracing a £46 million regeneration scheme, designed to create a ‘destination town’. The Spirit of Sittingbourne masterplan contains new apartments, an eight-screen cinema, new restaurants and an improved public realm –a vision already turning heads.

View Area Guide

Similar Properties

View More Properties
Top