<

3 Bedroom house to rent
Station Road, Newington, Kent, ME9

£1,600 per month

Well Presented Family Home | Popular Newington Location | Three Bedrooms | Driveway Parking | Rear Enclosed Garden | Perfect Location for the Station | Three Reception Rooms | En-suite to Master | Available March | Pets Negotiable |

  • Detached
  • Garden
  • Residents Parking
  • House
  • Long Let

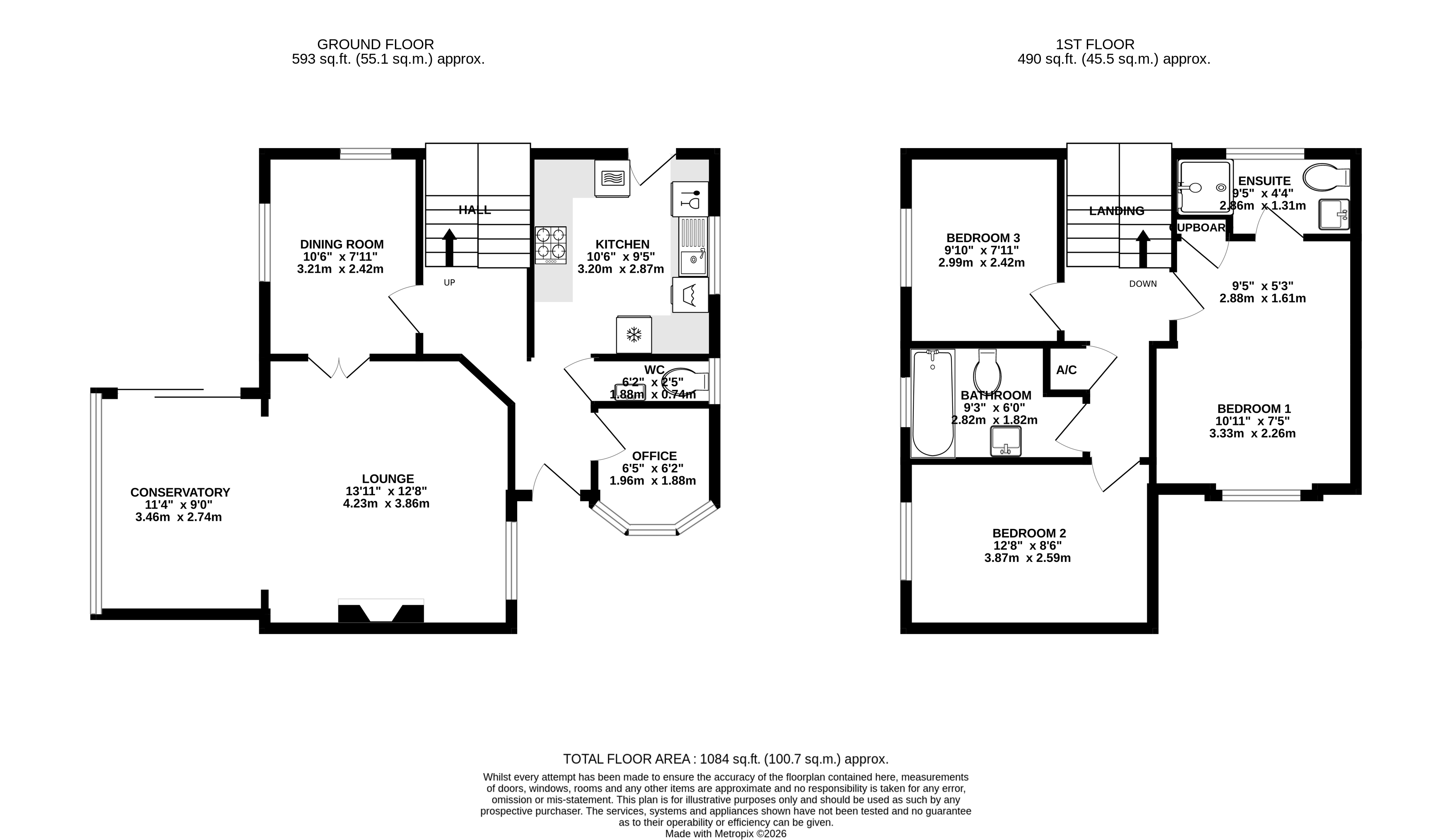
The accommodation comprises; entrance hall, study, downstairs cloakroom, kitchen with electric oven & hob, integrated fridge/freezer, microwave and washing machine, lounge leading into spacious conservatory and separate dining room.

Upstairs there are three double bedrooms and family bathroom, master benefiting from en-suite & built-in-storage. Externally the property has allocated driveway parking for two vehicles as well as a rear enclosed garden, mainly laid to lawn with decked area.

Newington offers a range of local shopping facilities, a primary school and mainline railway station connecting to London. Both Sittingbourne and Rainham are about 3 miles away and offer a wider choice of facilities.

This landlord has indicated that they may accept applications from people with pets on the basis a £25pcm surcharge will be applied.

 
Book a Viewing
 

About Sittingbourne

Sittingbourne is ready to step up its image by embracing a £46 million regeneration scheme, designed to create a ‘destination town’. The Spirit of Sittingbourne masterplan contains new apartments, an eight-screen cinema, new restaurants and an improved public realm –a vision already turning heads.

View Area Guide

Similar Properties

View More Properties
Top